Home Region Sport Magazin Schweiz/Ausland Agenda
Oberuzwil
25.03.2022
30.03.2022 08:59 Uhr

Orientierungsversammlung in Oberuzwil

Bild: Gemeinde Oberuzwil
Die ordentliche Bürgerversammlung 2022 wurde abgesagt; über die Vorlagen wird am 10. April 2022 an der Urne abgestimmt. Vorgängig lädt der Oberuzwiler Gemeinderat ein zu einer Orientierungsversammlung auf Dienstag, 29. März 2022, 19.30 Uhr in der Mehrzweckhalle Breite in Oberuzwil.

An der Orientierungsversammlung vom 29. März 2022, 19.30 Uhr in der Mehrzweckhalle Breite, wird unter anderem dieses Projekt im Detail erklärt. Meinungen können ausgetauscht und offene Fragen können geklärt werden. Bereits im Mitteilungsblatt vom 14.Januar wurde die Bevölkerung unter dem Titel «Lehrerbereich soll saniert werden» über den Investitionskredit in der Höhe von 545 000 Franken orientiert. Im Nachgang wurden aus der Bevölkerung einzelne Bedenken geäussert und Fragen nach der Verhältnismässigkeit der Investition gestellt. Für den Gemeinderat ist es wichtig, dass die Stimmbevölkerung das Vorhaben versteht. Denn aufgrund des Umstandes, dass keine Bürgerversammlung – sondern am 10. April 2022 eine Urnenabstimmung – stattfindet, fehlt der Raum für Anträge zu dieser Budgetposition.

Windfang und Eingangstüren

Der Investitionskredit umfasst auch die Erneuerung des Windfangs und der Eingangstüren zum Schulhaus. Es handelt sich um eine Glas-/Metallkonstruktion mit insgesamt acht Türflügeln, die während 50 Jahren gute Dienste leisteten. Rund 200 Jugendliche und Lehrpersonen passieren mehrmals täglich den Eingang. Trotz regelmässigen Unterhalts schliessen die Türen mittlerweile nicht mehr, weil sie derart stark verzogen sind und sich nicht mehr richten lassen. Dies ist sowohl aus energetischen Gründen wie auch für die Sicherheit des Gebäudes ein unhaltbarer Zustand. Der Ersatz durch eine zeitgemässe Schiebetüren-Anlage kostet 116 000 Franken und macht rund einen Fünftel der Investition aus.

Zeitgemässe Aufenthalts-und Arbeitsplätze

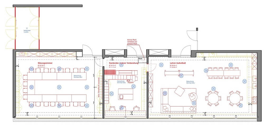
Im Projekt ist vorgesehen drei bestehende Räume so umzugestalten und zu verbinden, dass die Oberstufe künftig über zeitgemässe Aufenthalts- und Vorbereitungsplätze und einen Sitzungsraum für die rund 25 Oberstufenlehrpersonen verfügt. Die Räume werden auch von Musiklehrpersonen, Kursleitungen der Quartierschule (Deutschunterricht für Erwachsene), der Schulsozialarbeit sowie für Schulungen und Besprechungen mit externen Partnern benutzt. Die vorgesehenen Investitionen sind verhältnismässig und entsprechen dem Standard, wie er bei den anderen Schulanlagen der Gemeinde Oberuzwil angewendet wurde. Um motivierte, qualifizierte Lehrpersonen gewinnen bzw. behalten zu können, sind attraktive Arbeitsbedingungen zentral – dazu zählt auch eine zeitgemässe Infrastruktur für den Austausch in Fachgruppen, Sitzungen, Lektionenvorbereitung, Pausen usw.

Lehrerzimmer

Der neue Aufenthaltsraum für die Lehrpersonen mit einer Fläche von 80 m2 (ehemaliges Schulzimmer) soll neu eine vollständig eingerichtete Küchenzeile enthalten, in der Lehrpersonen ihr Mittagessen zubereiten und Geschirr und Küchenutensilien ordentlich verstauen können. Wie auch in anderen Branchen zu beobachten, ist es für viele Mitarbeitende wichtig, eine kürzere Mittagspause im «Betrieb» zu machen und danach weiterzuarbeiten. Wie bisher ist auch eine Fächeranlage für den Informationsaustausch geplant. Für Gespräche und die Pausenzeiten sollen Tische und eine Lounge zur Verfügung stehen.

Sitzungszimmer

In einem separaten Sitzungsraum, dem bisherigen Lehrerzimmer mit einer Fläche von 65 m2, soll künftig ungestört gearbeitet werden können. Diese Möglichkeit fehlt heute. Das Zimmer soll für Konvente, Arbeitssitzungen in Unterrichtsteams, Besprechungen in Gruppen oder für bilaterale Absprachen genutzt werden. Dies ist im «Lehrerzimmer», welches vor allem für Pausen, Verpflegung und Erholung genutzt wird, auch aufgrund der Geruchs- und Lärmemissionen, nicht möglich. Nicht zu vergessen sind jene Lehrpersonen, welchen kein eigenes Schulzimmer zur Verfügung steht. Im Rahmen der Schulentwicklung nimmt das kollaborative Arbeiten zwischen den Lehrpersonen einen immer höheren Stellenwert ein.

Vorbereitungsraum

Der bestehende Vorbereitungsraum mit einer Fläche von 30 m2 ist künftig von den beiden grösseren Räumen her zugänglich und dient künftig auch als Garderobe. Für die Verbindung und die veränderte Nutzung sind ein Mauerdurchbruch sowie das Versetzen eines IT-Racks und eines Lavabos notwendig. Die Plätze zum Kopieren, Schneiden, Binden, Lagern werden neu angeordnet. Das Fensterbrett wird als Arbeitsfläche verwendet. Alle Räume sind sowohl vom Gang als auch untereinander zugänglich, was kurze Wege und praktische Abläufe ermöglicht.

Bild: Gemeinde Oberuzwil
Bild: Gemeinde Oberuzwil

Kostenvoranschlag

Für das Budget wurde eine Kostenschätzung verwendet. In der Zwischenzeit liegt ein konkreter Kostenvoranschlag über 535 000 Franken vor, der eine Genauigkeit von plus/minus zehn Prozent garantiert. Die grössten Posten sind wie oben beschrieben beim Ersatz der Eingangstüren, der auch bauliche Anpassungen innen und aussen umfasst (CHF 116 000). Weitere Positionen in den drei Räumen mit insgesamt 175 m2 Fläche sind unter anderem Baumeisterarbeiten (CHF 15 000), Elektroanpassungen und eine neue Beleuchtung (CHF 61 000), eine abgehängte Akustiklochdecke (CHF 59 000), Schreinerarbeiten und Innentüren (CHF 67 000), Bodenbeläge inklusive Schmutzschleuse (CHF 42 000), Malerarbeiten (CHF 21 000), Mobiliar, Textilien, Geräte (CHF 79 500) sowie Architekten- und Ingenieurhonorare (CHF 53 000). Kleinere Beträge fallen an für Baustelleneinrichtung, Sanitär, Heizung, Bewilligungen, Muster und Versicherungen.

Dem Gemeinderat Oberuzwil ist es ein Anliegen, öffentliche Bauten hochwertig und langlebig, aber gleichzeitig kostenbewusst zu erstellen. Derzeit werden Optionen geprüft, ob und bei welchen Arbeiten Kosteneinsparungen möglich sind. So wäre es beispielsweise denkbar, den Parkett nur zu schleifen und neu zu versiegeln anstatt zu ersetzen, was eine Einsparung von 18 500 Franken zur Folge hätte. Darüber kann entschieden werden, wenn die Einbauten entfernt wurden und ersichtlich ist, wie gut der Zustand des Bodens darunter ist. 

Bürgerschaft zuständig

Gemeinderat und Schulrat unterstützen das Vorhaben, welches sowohl bautechnisch als auch schulisch begründet ist. Der Investitionskredit für die Sanierung des Eingangs- und Lehrerbereichs im  Oberstufenzentrum ist Teil des Budgets 2022, welches der Zustimmung der Bürgerschaft an der Urnenabstimmung vom 10.April 2022 bedarf. Der Gemeinderat ist immer bestrebt ist, bewilligte Kredite nicht vollständig auszuschöpfen und im Projektverlauf Einsparungen vorzunehmen, wenn diese ohne Qualitätsverlust möglich sind.

Orientierungsversammlung

Die ordentliche Bürgerversammlung 2022 wurde abgesagt; über die Vorlagen am 10.April 2022 wird an der Urne abgestimmt. Eine öffentliche Diskussion ist trotzdem möglich und erwünscht! Der Gemeinderat lädt ein zu einer Orientierungsversammlung auf Dienstag, 29. März 2022, 19.30 Uhr in der Mehrzweckhalle Breite in Oberuzwil. Interessierte haben Gelegenheit, sich über die Abstimmungsvorlagen detailliert informieren zu lassen und Fragen zu stellen.

Gemeinde Oberuzwil